Vorverkaufsinformation – Landhausvilla A+
Minimaler Verbrauch, maximaler Komfort:
Luxuriöses Wohnen im modernen Landhausstil.
Laufen-Salzach | nördliches Berchtesgadener Land
-
1.270.000 €
-
ca. 196 m2Wohnfläche
-
5Zimmer
-
2 + 3Garage | Stellplatz
-
2 + 2Bad | WC
-
Weitere Informationen —
Minimaler Verbrauch, maximaler Komfort. Luxuriöses Wohnen im modernen Landhausstil:
Objektbeschreibung
DAS LANDHAUS
Ein Ort zum Wohlfühlen –
lichtdurchflutet und perfekt durchdacht.
Die Landhausvilla wurde im Jahr 2011 im modernen und repräsentativen Landhausstil auf einem ca. 749 m² großen, sonnigen Grundstück in Laufen-Salzach im Berchtesgadener Land erbaut.
Im Gesamtkonzept des Hauses verbinden sich stilvoller Wohnkomfort, lichtverwöhnte Architektur und zukunftsorientierte Gebäudetechnik zu einem außergewöhnlich behaglichen und zugleich effizienten Wohnerlebnis.
Die hochwertig ausgeführte Ziegel-Massivbauweise, sichtbare Handwerksqualität und die geschmackvolle Innenausstattung mit maßgefertigter Schreinerküche, edlen Parkettböden und Natursteinfliesen vermitteln in jeder Ecke des Hauses spürbare Wertigkeit.
Großzügige, offen gestaltete Wohnbereiche schaffen eine einladende Atmosphäre für Familie und Gäste. Auf rund 196 m² Wohnfläche und drei Ebenen bietet das Haus ein durchdachtes Raumkonzept mit bis zu drei Schlafzimmern, zwei Bädern, zwei separaten WCs und viel Raum zur individuellen Entfaltung.
Ein liebevoll angelegter Garten mit überdachter Naturstein-Terrasse, eine Doppelgarage mit Zwischendecke und drei Außenstellplätze unterstreichen den hochwertigen und funktionalen Charakter dieses Anwesens. Im Südosten des Grundstücks befindet sich zudem ein optional zu erwerbendes Erweiterungsgrundstück.
– – – – – – – – – – – – – –
DIE WOHNEBENEN
Durchdacht geplant –
großzügig, komfortabel und behaglich.
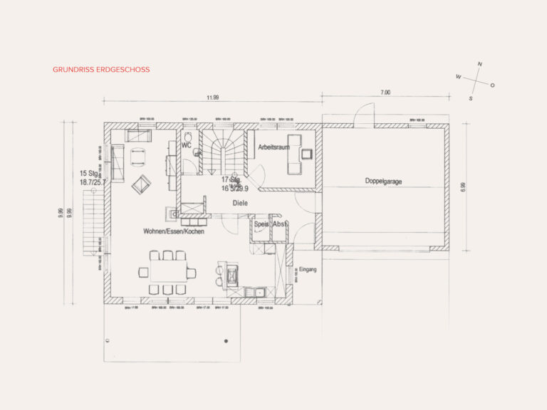
Das Erdgeschoss empfängt mit einer repräsentativen Naturstein-Diele und führt in den offen gestalteten Koch-, Ess- und Wohnbereich mit Kaminofen, Designerküche und Zugang zur Terrasse. Ergänzt wird die Ebene durch Gäste-WC, Büro, Speis, Abstellraum und direkten Zugang zur Doppelgarage.
Im Obergeschoss entsteht ein separater Elternbereich mit Schlafzimmer, Ankleide, Balkon und Masterbad. Zwei weitere Schlafräume, ein zweites Bad, separates WC sowie ein flexibler Abstell-/Ankleideraum runden das Obergeschoss ab. Der kunstvoll ausgeführte Sichtdachstuhl macht die Walmdachkonstruktion auch innen architektonisch erlebbar.
Im Untergeschoss stehen neben Hauswirtschafts- und Technikraum drei weitere individuell gestaltbare Räume zur Verfügung: ein großer Fitness-/Hobbybereich, ein Raum mit Saunavorbereitung sowie eine Werkstatt. Eine außenliegende Treppe führt direkt in den Garten.
– – – – – – – – – – – – – –
Erfahren Sie mehr über dieses wunderschöne Landhaus in unserem Exposé mit virtuellem 3D-Rundgang.
Ausstattung, Bauweise und Energie
Perfekt ausgestattet –
nachhaltig und zukunftsorientiert.
Die technische Ausstattung der Landhausvilla vereint moderne Effizienz mit hochwertigem Wohnkomfort. Das zukunftsfähige Energiekonzept basiert auf einer Luftwärmepumpe in Kombination mit zwei Photovoltaikanlagen: eine Anlage zur Volleinspeisung, die zweite mit Speicher zur Eigenstromnutzung und Überschusseinspeisung. Ein stilvoll integrierter Kaminofen mit Wärmetauscher unterstützt zusätzlich die zentrale Wärmeversorgung.
Eine Wallbox für E-Mobilität, eine 5.000-Liter-Zisterne zur Regenwassernutzung sowie eine BWT-Wasserenthärtungsanlage ergänzen das ganzheitliche Versorgungssystem.
Für den Alltag ebenso wie für besondere Momente sorgen stilvolle Details und durchdachte Ausstattungselemente: Fußbodenheizung auf allen Wohnebenen (außer Technikraum), edle Parkett- und Natursteinböden, maßgefertigte Holz- und Glastüren, elektrische Rollläden sowie ein Smart-Home-System der Firma Jung mit Netzwerkverkabelung in fast allen Räumen.
Die hochwertige Einbauküche mit Siemens-Geräten, Bora-Induktionsfeld und Teppanyaki-Grill unterstreicht den exklusiven Anspruch dieses Hauses bis ins Detail.
– – – – – – – – – – – – – –
HIGHLIGHTS
Das Baukonzept –
zeitlos & durchdacht
- Repräsentativer Landhausstil mit Walmdach
- Ca. 196 m² Wohnfläche auf drei Ebenen
- Lichtdurchflutete Räume, offenes Wohnkonzept
- Liebevoll gestalteter Garten mit Naturstein-Terrasse
- Großzügige Doppelgarage, drei Außenstellplätze
- Optional erweiterbares Grundstück angrenzend
Die Lage –
familienfreundlich und sonnig
- Familienfreundliche Wohnlage in Laufen an der Salzach
- Nur 15–20 Min. nach Salzburg, perfekte Verkehrsanbindung
- Umgeben von Natur, mit Alpenblick und Freizeitwert
- Einkauf, Schulen & Nahversorgung vor Ort
Die Ausstattung –
effizient und nachhaltig
- Viessmann-Luftwärmepumpe & zwei PV-Anlagen (11 kWh)
- Kaminofen mit Heizungsunterstützung
- Exklusive Küche mit Bora & Siemens-Geräten
- Fußbodenheizung, Smart-Home-System, Wallbox
- Regenwasserzisterne & Wasserenthärtung
- Topgepflegt, bezugsbereit – energieeffizient wohnen (A+)
Lage
Familienfreundlich gelegen –
vor den Toren Salzburgs.
Eingebettet in die sanfte Flusslandschaft des Rupertiwinkels liegt das Einfamilienhaus in der charmanten Grenzstadt Laufen an der Salzach – einem Ort mit hoher Lebensqualität, reicher Geschichte und einem naturnahen Umfeld.
Die sonnige Lage schafft ideale Bedingungen für Familien, Naturliebhaber und Berufspendler. Direkt gegenüber, auf der anderen Seite des Flusses, liegt das österreichische Oberndorf – Salzburg ist nur 15 bis 20 Autominuten entfernt.
Laufen verfügt über eine ausgezeichnete Infrastruktur mit Einkaufsmöglichkeiten, Ärzten, Schulen, Kindergarten, Freizeitangeboten und einem aktiven Vereinsleben. Über die B20 und die nahegelegene Autobahn A8 sowie den Bahnhof Laufen besteht eine hervorragende Anbindung in alle Richtungen – ob nach Freilassing, Traunstein, Bad Reichenhall oder München.
Die unmittelbare Umgebung bietet zahlreiche Wander- und Radwege, einen hohen Freizeitwert und gleichzeitig die Nähe zu urbaner Kultur und internationaler Erreichbarkeit über den Flughafen Salzburg.
Objektdaten
Bitte beachten Sie:
Auf Wunsch des Eigentümers benötigen wir vor der Vereinbarung eines Besichtigungsterminsum die Vorlage einer aktuellen Finanzierungsbestätigung Ihrer Bank. Sollten Sie noch keine Finanzierungsbestätigung vorliegen haben, unterstützen wir Sie gerne und stellen auf Wunsch den Kontakt zu unseren erfahrenen Finanzierungspartnern her.
Viele hilfreiche Informationen rund um die Finanzierung und den Ablauf des Immobilienkaufs finden Sie auch auf unserer Website → Bürokratische Hürden beim Immobilienkauf meistern
–
Hinweis
Der Käufer zahlt im Erfolgsfall an die Lobensommer Immobilien GmbH eine Käufer-Maklerprovision in Höhe von 2,38 % inkl. gesetzlicher MwSt. Die Provision errechnet sich aus dem beurkundeten Kaufpreis und wird bei Abschluss des (notariellen) Kaufvertrages fällig. Mit dem Verkäufer besteht ein Maklervertrag zur Zahlung der Courtage in gleicher Höhe.
Alle Angaben und Anlagen wurden mit größtmöglicher Sorgfalt zusammengestellt, gleichwohl kann für die Richtigkeit keine Gewähr übernommen werden. Irrtum und Zwischenverkauf vorbehalten.
Wir bieten diese Immobilie im Alleinauftrag zum Verkauf an und bitten um Diskretion.


